Secure Planning Approval Without The Fear Of Refusal, Delays Or Costly Mistakes
Complete Done For You Service - From Drawings To Approval So You Can Move Forward With Clarity, Confidence & The Highest Chance of Success
All Applications Submitted In Under 14 Days✔️
Fixed Price + Money Back Guarantee ✔️
100% Application Approval Rate✔️
5* Rating On Google
✳︎
Experienced Planning Specialists
✳︎
Proven Results
✳︎
London & Home Counties Coverage
✳︎
5* Rating On Google ✳︎ Experienced Planning Specialists ✳︎ Proven Results ✳︎ London & Home Counties Coverage ✳︎
Most Planning Applications Fail Before They’re Even Submitted.
Most homeowners start their applications in the dark on if their project will actually be approved or not. That’s where things go wrong. Delays. Redesigns. Rejection.
The reality is — planning approval doesn't have to be difficult or risky.
It comes down to three simple factors - the strategy behind the proposal, how the design aligns with planning policy, and whether the approach is actually viable.
We use our experience to prepare all applications within the required framework ensuring that you move forward with a clear, low-risk plan from day one.
No guesswork. No conflicting advice. No wasted time.
We manage every step for you from start to finish — ensuring your application is compliant, professionally presented, and gives your project the strongest possible chance of approval.
So when you submit, it’s not a guess — it’s a calculated step toward approval.
From Our Clients
-
‘‘Great service from start to finish. Michael was honest, knowledgeable, and very detail focused. Would highly recommend“
Harry - Rear Extension, SW London

-
Thanks to Michael’s guidance, our application was successfully approved, which we are absolutely delighted about. He made the process feel smooth and straightforward. Thank you again for such a fantastic experience!
Tasha - Rear Extension, Surrey

-
Very professional and answered all of my questions promptly which made the process much less stressful. Really grateful for the support with my project!
Irina, Loft Conversion, Surrey

How It Works - The 4 Steps To Planning Approval
1) Initial Feasibility Review
We assess your project and advise what’s realistically achievable before you spend a penny.
2) Home Survey & Drawings
We carry out a survey of your property and produce accurate drawings and a design aligned with planning policy for maximum chances of approval.
3) Preparation & Submission
We handle the entire application and deal with the council on your behalf so you won’t have to study the policies.
4) Approval
You receive your decision and can get your project started with confidence & clarity.
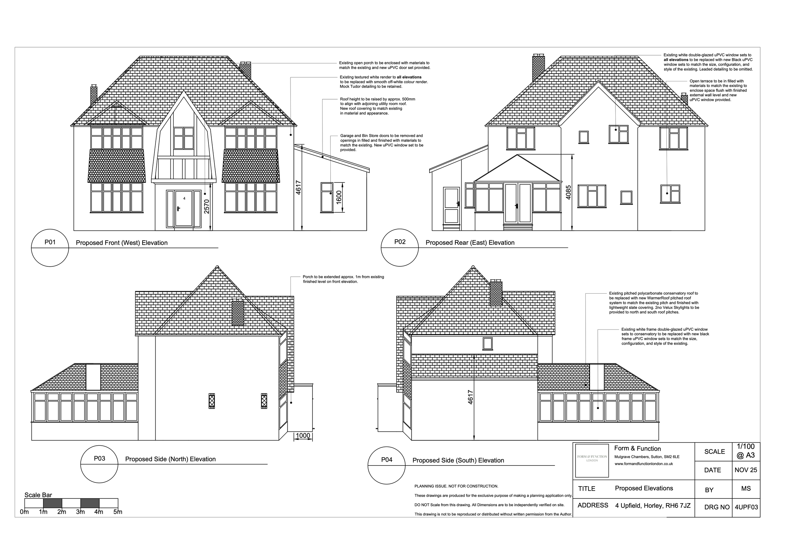
Case Study - Full Planning Permission Granted (Surrey)
We recently secured full planning permission for a substantial refurbishment of a 1900s detached home significantly improving both functionality and kerb appeal.
Everything You Need To Get Approved — At One Fixed Price
From £850 • Clear Timeline • 100% Money-Back Guarantee
Initial Consultation to understand your goals and advise the best way to achieve them
Full survey of your property and production of architectural drawings & floor plans
Creative design support to bring your ideas to life with unlimited revisions
Preparation, submission & managment of the application with the council
Expert support from initial enquiry right up to application decision
We only take on projects that we are confident will be approved so you are protected by our 100% money back guarantee.
Fixed Cost. No Hidden Fees. Money Back Guarantee.